Деревянная лавочка из сломанных стульев
Если в хозяйстве имеются старые деревянные стулья, их можно пустить под изготовление лавочки.
Варианты садовых лавочек из старых деревянных стульев
Из 2 стульев
Подготовив два одинаковых стула, можно приступить к сборке лавочки:
- Разобрать стулья, оставив только часть со спинкой, переходящей в задние ножки.
- Соединить 2 спинки с помощью короба из брусков подходящего сечения.
- Для большей надежности внизу, на расстоянии 20 см от пола, где ранее у стульев находились перемычки, сделать еще одну раму с поперечными перекладинами. Её можно будет использовать в качестве подставки для ног или полку для хранения мелких садовых вещей.
- Готовую конструкцию отшлифовать и покрасить краской для внешних работ.
- Из фанеры (толщиной 8-10 мм) вырезать подходящее по размерам сиденье, обтянуть его поролоном (удобно использовать строительный степлер), а после установить на готовую раму.
Из 4 стульев
Более сложная конструкция, которая собирается в таком порядке:
- Со всех 4 стульев убрать сиденья. У 2-х из них отпилить передние ножки и удалить спинки. Остальные стулья разберите на бруски. При необходимости снять старый лак или краску с заготовок. С помощью дрели и нагилей, шуруповёрта и саморезов соберите из брусков короб и прикрепите его к двум стульям, что остались не разобранными.
- Подобрать в качестве сиденья подходящие по размерам доски или деревянные рейки, а после соединить их между собой столярным клеем. Целостное сиденье приклеить к основанию, положить сверху тяжелые предметы и оставить до высыхания.
- Готовое изделие обработать морилкой и покрыть лаком или краской.
Существует множество способов изготовить лавочку из дерева, с которыми можно было ознакомиться выше. Выбрав более понравившийся вариант, его можно дополнить собственными идеями или видоизменить, исходя собственных навыков работы с древесиной.
Чертежи скамеек для дачи своими руками: фото и схемы
При выполнении скамьи учитываются индивидуальные потребности, а также определенные параметры. Чтобы создать качественную конструкцию, вам понадобится чертеж со всеми размерами. Важным моментом является расчет количества материалов, который будет зависеть от конечных параметров конструкции. Особым удобством отличается профилированный брус. Чтобы закруглить края, можно применить специальную фрезу.
Садовая скамейка со спинкой своими руками чертежи: двухместные конструкции
Скамейки могут иметь разную вместительность. Чаще всего они рассчитаны на 2-4 человека. Для двухместной конструкции понадобятся бруски и доски. Чтобы соорудить такое изделие понадобится не более одного дня. Прежде чем выполнять раскрой, нужно подобрать правильные чертежи.
Чертеж небольшого изделия
Скамейка для дачи из дерева своими руками: как сделать пошагово
Прежде всего, готовятся доски для сидения. При этом материал нарезается и обрабатывается. В этом деле поможет шлифовальная машинка или фрезер. Можно использовать и наждачку, но при этом уйдет гораздо больше времени. С помощью брусков можно соорудить прочные ножки. Участки, где будут размещены крепежные элементы необходимо отметить.
В качестве крепежных элементов применяются штифты из металла. Для большей прочности можно воспользоваться специальным клеем. Штифты применяются и для надежного крепежа спинки. После выполнения разметки, нужно отмерить расстояния от края.
Простой вариант для дачи
Сборка происходит так:
- бруски кладутся друг на друга;
- все детали крепятся струбцинами;
- делаются отверстия в центре и по краям;
- через проделанные отверстия детали фиксируются шпильками.
Как сделать простую конструкцию посмотрите на видео:
Затем доски сидения крепятся к ножкам с помощью гвоздей. После этого шляпки гвоздей можно замаскировать смесью из мастики и опилок. Обязательно покройте поверхность краской или лакирующим составом.
Садовая скамейка своими руками из подручных материалов: из поддонов
Можно сделать скамейку из поддонов своими руками. Фото интересных вариантов вы можете посмотреть на нашем сайте. Такую мебель можно разместить не только в саду, но и в дачном домике или на веранде. Для монтажных работ вам потребуется три поддона.
Красивая композиция из поддонов
Так происходит сборка:
- поддон делится на две половины. Эти половинки будут применяться для спинки;
- два поддона соединяются вместе с помощью гвоздей;
- затем к ним крепится и спинка;
- сверху кладется матрас подходящих габаритов.
Видео: как сделать простую скамейку из поддонов
Чертежи садовой скамейки со спинкой из дерева своими руками: вариант-трансформер
Самостоятельно конструируется трансформирующаяся конструкция. Для этого понадобятся доски и бруски.
Вариант подобной конструкции вы можете видеть на этой схеме
Технология изготовления скамейки-трансформера своими руками
Соорудить конструкцию можно, выполняя следующие действия:
- к опорной части крепится 3 доски, из них будет делаться сидение. В каждую доску нужно вставить по 4 самореза;
- при сборке узлов необходимо наносить на эти зоны столярный клей;
- ножки для опоры спинки необходимо запилить с торцевой стороны. Затем ножки нужно соединить парами;
- затем нужно сделать спинку, которая при трансформировании будет перевоплощаться в столешницу.
- доски крепятся так, чтобы остался зазор;
- в опорной доске необходимо сделать 3 отверстия с диаметром 0,8 см.
Вот удобная конструкция трансформера:
Чтобы создать оси вращения нужно выполнить два отверстия на задней ножке. Крепление спинки к основанию производится при помощи болтов.
Статья по теме:
Столы из бревен фото
Скамейки и лавки из бревен – лучшая подборка из 200 фото
В этой большой подборке фотографий собраны идеи скамейки из бревен своими руками, из которых вы можете выбрать для своего проекта. Скамейки из бревен — прекрасное дополнение к саду или даче, которые станут отличным летним проектом. Независимо от того, используется бревно с корой или очищенное, все равно вид будет красивый и натуральный. Хотя на первый взгляд может показаться, что все лавочки из бревен похожи, на самом деле есть много возможностей для вариаций в дизайне. Каждая скамейка может быть выполнена различными способами, что позволяет создавать самые разные конструкции. Все зависит от фантазии и навыков работы с деревом.
Знаменитые цитаты о личностном росте и развитии
- “С самодисциплиной возможно все ». — Теодор Рузвельт
- “Секрет успеха в том, чтобы начать ». — Марк Твен
- “Всегда делай то, чего боишься ». — Ральф Уолдо Эмерсон
- “Рост начинается, когда мы начинаем принимать собственные слабости ». — Жан Ванье
- “Сила воображения делает нас безграничными ». — Джон Мьюир
- “Когда мы больше не можем изменить ситуацию, перед нами стоит задача изменить себя.”
- “Цели позволяют вам контролировать направление изменений в вашу пользу ». — Брайан Трейси
- “Тот, у кого есть «зачем жить», может вынести почти любое «как» »- Фредерик Ницше.
- “Есть только одна стратегия роста: усердно работать ». — Уильям Хейг
- “Я думаю, что личный рост во многом зависит от актерских способностей ». — Беверли Д’Анджело
- “Тебя сдерживает не то, кем ты являешься, а то, кем ты себя не считаешь ». — Денис Уэйтли
- “У выдающихся людей есть одно общее: абсолютное чувство миссии ». — Зиг Зиглар
- “Доход редко превышает личное развитие ». ―Джим Рон
- “У вас должен быть определенный уровень недовольства, чтобы почувствовать желание расти ». — Идову Коеникан
- “Мы — продукты нашего прошлого, но мы не должны быть его пленниками ». — Рик Уоррен
- “Если вы хотите создать шедевр, вы должны быть готовы собирать мусор по пути ». — Джеймс Клир
- “Вы не можете вообразить себя персонажем; ты должен долбить и выковать себе такой ». — Генри Дэвид Торо
- “Жизнь подарит вам любой опыт, наиболее полезный для развития вашего сознания ». — Экхарт Толле
- “Если вам что-то не нравится, поменяйте. Если вы не можете это изменить, измените свое отношение ». — Майя Анжелу
- “Кто-то сидит сегодня в тени, потому что давным-давно посадил дерево ». — Уоррен Баффет
- “Успех не окончательный, неудача не фатальна: главное — смелость продолжать. » — Уинстон Черчилль
- “Будьте терпеливы с собой. Саморазвитие нежное; это святая земля. Нет ничего лучше ». — Стивен Кови
- “Ключ к росту — это осознать свой страх перед неизвестным и в любом случае вмешаться ». — Джен Синсеро
- “Самый быстрый способ утроить свой успех — это удвоить вложения в личное развитие ». — Робин Шарма
- “Если вы не потратите время на создание той жизни, которую хотите, вы в конечном итоге будете вынуждены тратить много времени на жизнь, которую вы не хотите ». — Кевин Нго
- “Обуздание или послушное подчинение сдерживанию необходимо для нашего личного роста и прогресса ». — Джеймс Э. Фауст
- “Рост болезненный. Изменения болезненны. Но нет ничего более болезненного, чем застревать там, где тебе не место ». — Н. Р. Нараяна Мурти
- “Когда кто-то говорит мне «нет», это не значит, что я не могу этого сделать, это просто означает, что я не могу сделать это с ними ». — Карен Э. Хинонес Миллер
- “Вы должны начать рассказывать историю своей жизни такой, какой вы хотите ее видеть сейчас, и прекратить рассказывать о том, как она была или как она сложилась.”
- “Трагедия жизни не в том, что вы не достигли своей цели. Трагедия заключается в том, что у нас нет цели ». — Бенджамин Мэйс
- “Каждый момент своего существования человек превращается в большее или отступает в меньшее ». — Норман Мейлер
- “Воля к победе, желание добиться успеха, стремление полностью раскрыть свой потенциал… это ключи, которые откроют дверь к личному совершенству ». — Конфуций
- “То, что вы делаете, имеет значение, и вы должны решить, какие изменения вы хотите сделать ». — Джейн Гудолл
- “Примите ответственность за свою жизнь. Знайте, что именно вы доставите вас туда, куда хотите, и никто другой ». — Лес Браун
- “Изменения равносильны самосовершенствованию. Отправляйтесь в места, где раньше не бывали ». — Пэт Саммитт
Где лучше поместить деревянную мебель?
Деревянная скамейка, которая украшает сад или придомовую территорию дачи и является местом отдыха взрослых и детей — важный атрибут садового дизайна.
Это может быть место у заднего входа, центрального крыльца, на террасах, в зонах барбекю, беседках, возле садовых дорожек, под густыми ветвями деревьев, около красивых кустов, около пруда или озера.
Фото:
Можно установить садовую мебель в таких местах, с которых можно полюбоваться морем или горами.
Необходимо помнить, что скамейки нужно установить в нескольких местах: в тени, где можно спрятаться от жары в летнее время, и на видном месте, где в прохладные осенние дни получится погреться под лучами еще теплого солнышка.
Нестандартные модели скамей
Вот несколько оригинальных и интересных идей скамеек из дерева:
- вокруг дерева. Скамья создана так, будто складывается их четырех моделей со спинками и с подлокотниками, составленными вокруг дерева. Смотрится очень комфортно и эстетично;
- из цельного бревна. Такая скамья объединяет в себе сиденье и спинку, а снизу приделаны ножки из бревна. Стоит учесть, что бревно потребуется крупное и толстое;
- с фигурными элементами. Данный вариант практически идеально подходит для естественного сельского дизайна. Необычной и своеобразной такую скамейку делают резные элементы и фигурная спинка;
- с ящиком для хранения. С первого взгляда можно подумать, что это стандартная скамья-диван из дерева. Но на самом деле под сиденьем скрывается отделение для хранения, куда можно положить что угодно;
- столик со скамейками. За счет того, что изготовлена из дерева, конструкция смотрится весьма традиционно. Такому комплекту добавит оригинальности решение объединить столик и скамейки в одну конструкцию. Но это действительно очень стильные модели.
Скамейка из бревен со спинкой чертеж
Скамейки из бревен имею свою специфику, возможно, это физически тяжелая работа, но довольно простая. Вот иллюстрированные картинки, где просто и доступно на схемах показано, как собрать скамейку из бревен со спинкой своими руками. Все это можно сделать за пару часов, конечно, если у вас есть подходящие два бревна длиной приблизительно 120 см. Если есть только целые бревна, можете разрезать их на плоские части с помощью цепной пилы.
Основание этой скамейки со спинкой состоит из четырех частей, для этого нужны бревна где-то 60 см. Приготовьте гвозди и 8 длинных шурупов. Понадобится небольшое бревно, обрезанное до 10 см в ширину, чтобы установить спинку. Сначала выровняйте землю в том месте, где планируете установить скамейку. Конструкция будет тяжелой, поэтому лучше все делать на месте! При необходимости отшлифуйте сиденья и спинки. Сложите бревна стопкой, чтобы получились две скамейки. Скрепите бревна между собой гвоздями. Используйте два или три гвоздя на основание, вбивая через верхнее бревно в нижнее бревно.
С помощью бензопилы или стамески вырежьте полумесяц в верхней части основания, чтобы получить седло для сиденья. После этого вбейте два гвоздя в нескольких сантиметрах от края сиденья в верхнюю часть основания с каждой стороны. Прибейте опорные бревна спинки к концу основания, используя два гвоздя с каждой стороны. Прикрутите спинку, используя три или четыре шурупа с каждой стороны. Как видите, конструкция такой скамейки из бревен очень простая, так что это практически может сделать каждый, были бы бревна. Тем более, никаких особых инструментов вам не понадобится, только бензопила и молоток. Ну и конечно, умение пользоватся бензопилой, это тоже за 5 минут не освоишь. По желанию можно покрасить или отполировать. Конечно лучше нанести покрытие.
Более подробную инструкцию мржно прочитать на сайте.
Фото Марка Р. Джонсона. Иллюстрации Джея Смита. Источник фото: cabinlife.com/articles/article/make-your-own-rustic-log-bench
Совет шестой. «Горячий» звонок
Это очень эффективный совет, который наверняка поможет вам абсолютно точно выяснить, что именно хотел бы получить в подарок тот или иной человек. Для этого вам необходимо знать номер его телефона. Впрочем, вполне логично, что эта информация у вас точно есть, коль скоро вы так заморачиваетесь поиском эксклюзивного подарка-сюрприза для этого человека.
Затем попросите кого-то из своих знакомых (желательно, чтобы он имел отношение к продажам) позвонить вашему, скажем, другу или мужу, чтобы сообщить ему, что, к примеру, в его любимом торговом центре осуществлялся розыгрыш. Мол, номер его скидочной карты оказался выигрышным. Якобы необходимо определиться сейчас, скидкой на какую группу товаров хотел бы он воспользоваться.
Никто не утверждает, что данный способ совершенен! Человек, которому вы позвонили, может сразу отказаться от предложения, может начать интересоваться деталями (в этом случае вам придется импровизировать). Многие весьма негативно относятся к подобным звонкам, иногда достаточно грубо отшивая звонящих.
Однако у вас есть одно неоспоримое преимущество – в этом случае должно сработать старое доброе желание получить что-то бесплатно или очень дешево! Предложите отличную скидку
– процентов 80. Как быть, если человек начнет перезванивать на этот номер, будет пытаться связаться с торговым центром?
Используйте данный способ непосредственно перед праздником. Тогда у вашего друга и партнера просто не будет времени и возможности связываться с кем бы то ни было и что-то выяснять. При вручении подарка ваш маленький обман, скорее всего, раскроется, однако ваша цель будет достигнута, а победителей, как известно, не судят!
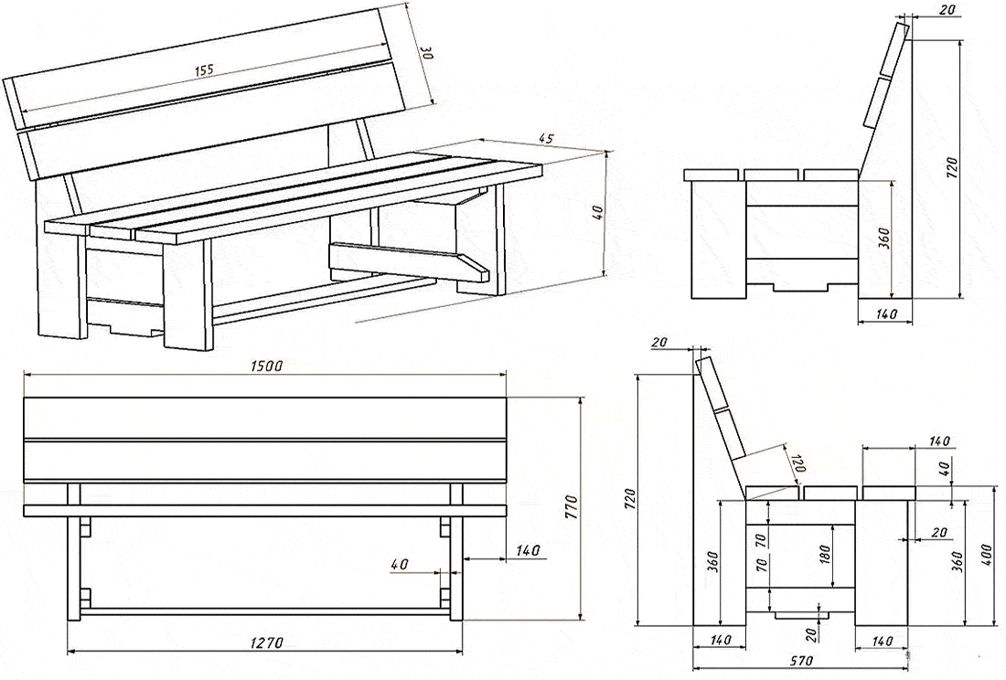
Конструкция деревянной скамейки
Общая структура скамейки из дерева пригодится тем, кто решил сделать ее своими руками. Перед началом работ рекомендуется произвести чертеж будущего творения с размерами и расположением элементов. Он поможет быстро изготовить нужные деревянные детали скамейки и правильно собрать их в одну садовую конструкцию. Каждый элемент чертежа выполняет свою функцию, без которой изделие будет неготовым, ненадежным или недостаточно удобным:
- Ножки скамейки – опоры. Для удобной посадки их выводят на высоту 40-50 см от земли. Более низкое или более высокое расположение заставляет принимать неестественную позу, от которой отдых становится мучением и неблагоприятным напряжением позвоночника. В зависимости от длины скамейки из дерева предусматривают разное количество элементов: максимум через каждые 150 см. Задние и передние опоры – на одном уровне между собой. Обычно нужны две пары, так как большинство деревянных скамеек имеют небольшие габариты.
- Между ножками и сиденьями скамейки, схемы предусматривают промежуточные поперечные и продольные балки, потому что не всегда плоскость сиденья образована одной доской. Их обязательно крепят по периметру сиденья к вершинам ножек, но если расстояние большое, могут быть дополнительные поперечные элементы, присоединяемые уже к продольным балкам. Промежуточные деревянные опоры могут отсутствовать, только если сидение скамейки выполнено из широких досок.
- Сидение формируется из элементов, прибиваемых к промежуточным балкам и выходящих за пределы ножек на 5-25 см. Рекомендуется выбирать ровные доски.
- Стяжка – элемент прочности лавки. На чертежах ее можно сделать в разных формах, но функция одна: жесткое скрепление деревянного каркаса. Это могут быть один брус или доска, торцами соединяемая с ножками скамейки на высоте 20-30 см или угловые бруски, скрепляющие каждую ножку с промежуточными балками. Стяжка предупреждает расшатывание деревянных опор.
- Спинка – функциональный элемент, который разделяет все скамейки на две конфигурации: с ней и без нее. Она служит для большего комфорта и отдыха спины. Спинка не должна быть вертикальной под 90° — это неудобное положение. Оптимальный угол наклона от плоскости сиденья — 110-120°. Наличие спинки требует модернизации чертежа ножек. Площадь опоры нужно сделать больше. Геометрически нагрузка распределяется уже на сиденье и горизонтальную проекцию спинки. Задние ножки деревянной скамейки выдвигают дальше от середины или наклоняют, чтобы нижние точки ушли назад. Спинка состоит из опор и плоскости. Первые под наклоном крепятся к ножкам, к ним присоединяют доски или рейки.

Сергей Есенин — красивые стихи о жизни, душе и любви
Поэзия великого русского поэта Сергея Есенина никого не оставляет равнодушным. Стихи Есенина о смысле жизни, беспокойной, ищущей опоры душе или любви к женщине трогают своей пронзительностью поклонников поэта и любителей поэзии.
Думы
Думы печальные, думы глубокие, Горькие думы, думы тяжелые, Думы, от счастия вечно далекие, Спутники жизни моей невеселые!
Думы — родители звуков мучения, Думы несчастные, думы холодные, Думы — источники слез огорчения, Вольные думы, думы свободные!
Что вы терзаете грудь истомлённую, Что заграждаете путь вы мне мой?.. Что возбуждаете силу сломлённую Вновь на борьбу с непроглядною тьмой?
Не поддержать вам костра догоревшего, Искры потухшие… Поздно, бесплодные. Не исцелить сердца вам наболевшего, Думы больные, без жизни, холодные!
***
Дай, Джим, на счастье лапу мне, Такую лапу не видал я сроду. Давай с тобой полаем при луне На тихую, бесшумную погоду. Дай, Джим, на счастье лапу мне.
Пожалуйста, голубчик, не лижись. Пойми со мной хоть самое простое. Ведь ты не знаешь, что такое жизнь, Не знаешь ты, что жить на свете стоит.
Хозяин твой и мил и знаменит, И у него гостей бывает в доме много, И каждый, улыбаясь, норовит Тебя по шерсти бархатной потрогать.
Ты по-собачьи дьявольски красив, С такою милою доверчивой приятцей. И, никого ни капли не спросив, Как пьяный друг, ты лезешь целоваться.
Мой милый Джим, среди твоих гостей Так много всяких и невсяких было. Но та, что всех безмолвней и грустней, Сюда случайно вдруг не заходила?
Она придет, даю тебе поруку. И без меня, в ее уставясь взгляд, Ты за меня лизни ей нежно руку За все, в чем был и не был виноват.
Звезды
Звездочки ясные, звезды высокие! Что вы храните в себе, что скрываете? Звезды, таящие мысли глубокие, Силой какою вы душу пленяете?
Частые звездочки, звездочки тесные! Что в вас прекрасного, что в вас могучего? Чем увлекаете, звезды небесные, Силу великую знания жгучего?
И почему так, когда вы сияете, Маните в небо, в объятья широкие? Смотрите нежно так, сердце ласкаете, Звезды небесные, звезды далекие!
Ты ушла и ко мне не вернешься…
Ты ушла и ко мне не вернешься, Позабыла ты мой уголок И теперь ты другому смеешься, Укрываясь в белый платок.
Мне тоскливо, и скучно, и жалко, Неуютно камин мой горит, Но измятая в книжке фиалка Все о счастье былом говорит.
Поделиться статьей с друзьями!
48
Поделились
Клумба из бревна для цветов своими руками
Скамейка, это классно, но если рядом еще сделать такую симпатичную клумбу для цветов из бревна, будет полная гармония. Правда, выдолбить емкость в бревне для грунта намного сложнее, чем сделать обычную лавочку из бревна, но зато не нужно никаких особых знаний. Просто тяжелая работа, распилить, вырезать выемки и все остальное, и при этом постараться не покалечится, меры безопасности, прежде всего, особенно при работе с цепной пилой.
Источник фото: unicommerce.si/novice_in_nasveti/nasveti/strokovno_znanje_za_vas_vrt/delo_z_motornimi_zagami_stihl/tako_izdelate_korito_za_cvetlice/
Как построить лавочки самостоятельно?
Для того, чтобы построить своими руками удобную скамейку, нужно сделать ее эскиз. Существуют оптимальные размеры садовой мебели, которые нужно соблюдать при этом:
- высота сидения над полом – 40 — 50 см;
- ширина (глубина) лавочки – 50 — 55 см;
- высота спинки над скамьей – 35 — 50 см.
Эти размеры позволяют человеку среднего роста удобно сидеть, опираться на спинку, легко вставать. Если комплекция хозяина сильно отличается от среднестатистических показателей, то габариты лавочки придется подобрать индивидуально. Спинку обычно делают с небольшим наклоном назад. Подробнее о деревянных лавочках смотрите в этом видео:
Для работы по дереву понадобятся следующие инструменты:
- ножовка или электролобзик;
- дрель и саморезы, или молоток и гвозди;
- рулетка;
- карандаш.
Для сборки изделий сложной формы может пригодиться столярный клей. Им скрепляют детали, которые соединяются методом «шип-паз» или мебельной шпонкой (шкантом). Для изделий из фанеры пригодятся длинные металлические шпильки с резьбой и гайки.
Скамья из бревна
Для создания этой конструкции надобятся всего лишь:
- бензопила;
- толстое бревно.

Чтобы создать действительно удобные модели, длина бревна должна быть не меньше одного метра.
Схема работы следующая:
- Бревно надо разметить на две части, которые должны быть неодинаковыми по размерам. Та, что покрупнее, будет сиденьем, а та, что поменьше – спинкой.
- Бензопилой распилить бревно в соответствии с меткой. Неровности надо убрать с помощью той же бензопилы.
- Затем выпилить треугольник, сделав таким образом крепление под названием «ласточкин хвост». Сделать в сиденье и спинке углубления в соответствии с фото.
- Треугольную деталь разделить на части и вставить в проделанные в сиденье углубления.
- Закрепить спинку.
- Остается лишь сделать скамейку более привлекательной на вид. Для этого сиденье можно поставить на ножки.
- Ножки можно соорудить из полуколец бревен. Для закрепления в нижней части сиденья надо сделать подходящие по размеру углубления.
Подготовительные работы
Одним из важнейших элементов строительства является подготовка чертежа. Он должен включать в себя такие элементы:
- Размеры. Сидение должно иметь ширину около 50 см, и высоту спинки 40-50 см. Данные размеры можно увеличить, но при этом нужно соблюдать пропорции. Расстояние от земли должно составлять около 50 см.
- Стиль изделия. С ним нужно определиться заранее, чтобы продумать вид изделия и материалы для оформления лавки.
- Размещение. В зависимости от этого параметра необходимо выбирать вид скамейки. Изделие без спинки подойдет для установки в саду, а массивную лавку можно поставить возле дома или в беседке.
- Выбор материала. Для строительства можно использовать различные породы дерева. Однако хвойные породы лучше не применять. Причиной тому является выделение смолы.
- Расчет материалов. Производится на основании предварительно выполненного чертежа.
Перед началом проведения работ рекомендуется провести обработку древесины. Это позволит защитить ее от негативного воздействия окружающей среды, насекомых и грибка.
Использование древесины на дачном участке
В настоящее время строительными магазинами предлагается на выбор огромное количество различных готовых скульптур и других элементов для сада и огорода, выполненных из различных материалов.
Но лучше не полениться и изготовить дачные поделки своими руками – из дерева, в отличие от камня или металла, их делать не так уж сложно, а получившийся результат превзойдет ваши самые смелые ожидания.
Идеи для поделок
Остановимся на интересных и несложных для реализации конструкциях:
-
Наиболее часто встречающийся вариант – скульптуры из древесины
. Это может быть фигура, выполненная из цельного бревна либо составленная из нескольких частей, соединенных между собой тем или иным образом. -
Хорошо выглядят поделки из веток и пней, которые напоминают зверей, птиц или сказочных персонажей
. В этом случае вам практически не нужно вносить изменений в их природную форму, достаточно очистить материал от коры и залакировать.
-
Хорошо подходит для творчества фанера
. Нарисуйте на листе аиста, мельницу или лягушку-царевну, отрежьте лишние части и покрасьте изделие.
-
Из фанеры можно сделать и прекрасные емкости для растений, скворечники для птиц
. Еще одна красивая и полезная вещь – кормушка.
Бревна в качестве материала для творчества
Очень часто при оформлении дачного участка требуется спилить одно или несколько деревьев. Конечно, они прекрасно подойдут в качестве дров, но лучше проявить фантазию и пустить их на поделки из бревен для дачи: своими руками вы без проблем сделаете клумбу, скамейку либо декоративный колодец.
Рассмотрим эти варианты более подробно.
- Клумба для цветов. Для большинства дачников не в новинку , изготовленные из различных подручных материалов: гипса, пустых стеклянных бутылок, старых автомобильных шин и так далее. Но именно старое бревно как ничто другое подойдет для этой цели.

Для изготовления необходим молоток со стамеской либо бензопила. Сделав выемку подходящего размера и установив бревно на опоры, вы абсолютно бесплатно поучаете необычное и симпатичное изделие. Останется только наполнить выемку землей и посадить цветы.
-
Садовая мебель. Прекрасное решение, которое, однако, не так просто реализовать. Прежде всего, необходимо подобрать бревно достаточно большого диаметра.Затем тщательно обработать его различными инструментами:
-
- первая стадия – топор или бензопила;
- вторая стадия – стамеска и молоток;
- третья стадия – шлифование и нанесение защитного покрытия.

- Декоративный колодец. Очень красивый аксессуар для дачного участка. Минус его в том, что для изготовления не подойдет старая древесина. Нужно приобрести качественный оцилиндрованный кругляк и сложить из него сруб.

Смешные загадки с подвохом для детей 6-8 лет

Какие слова изнуряли Винни-Пуха?
Ответ: Длинные и труднопроизносимые.
Из какой посуды нельзя ничего поесть?
Ответ: Из пустой.
Сколько месяцев в году имеют 28 дней?
Ответ: Все 12, поскольку короче 28 дней не существует месяцев.
Куда идет ежик, переходя дорогу?
Ответ: На другою сторону улицы.
Под каким деревом сидит заяц, когда идет дождь?
Ответ: Под промокшим (мокрым).
На что похожа половина апельсина?
Ответ: На другую половину апельсина.
Когда черной кошке лучше всего пробраться в дом?
Ответ: Когда дверь в доме открыта.
На березе росло 90 яблок. Подул сильный ветер, и 5 яблок упали. Сколько осталось яблок на дереве?
Ответ: На березе яблоки не растут.
Чем кончаются день и ночь?
Ответ: Мягким знаком.
Маленький, серенький и на слона похож. Кто это?
Ответ: Слоненок.






























